Search the website

On this page

From £116,000
2 Bedrooms
2 Bathrooms

Overview

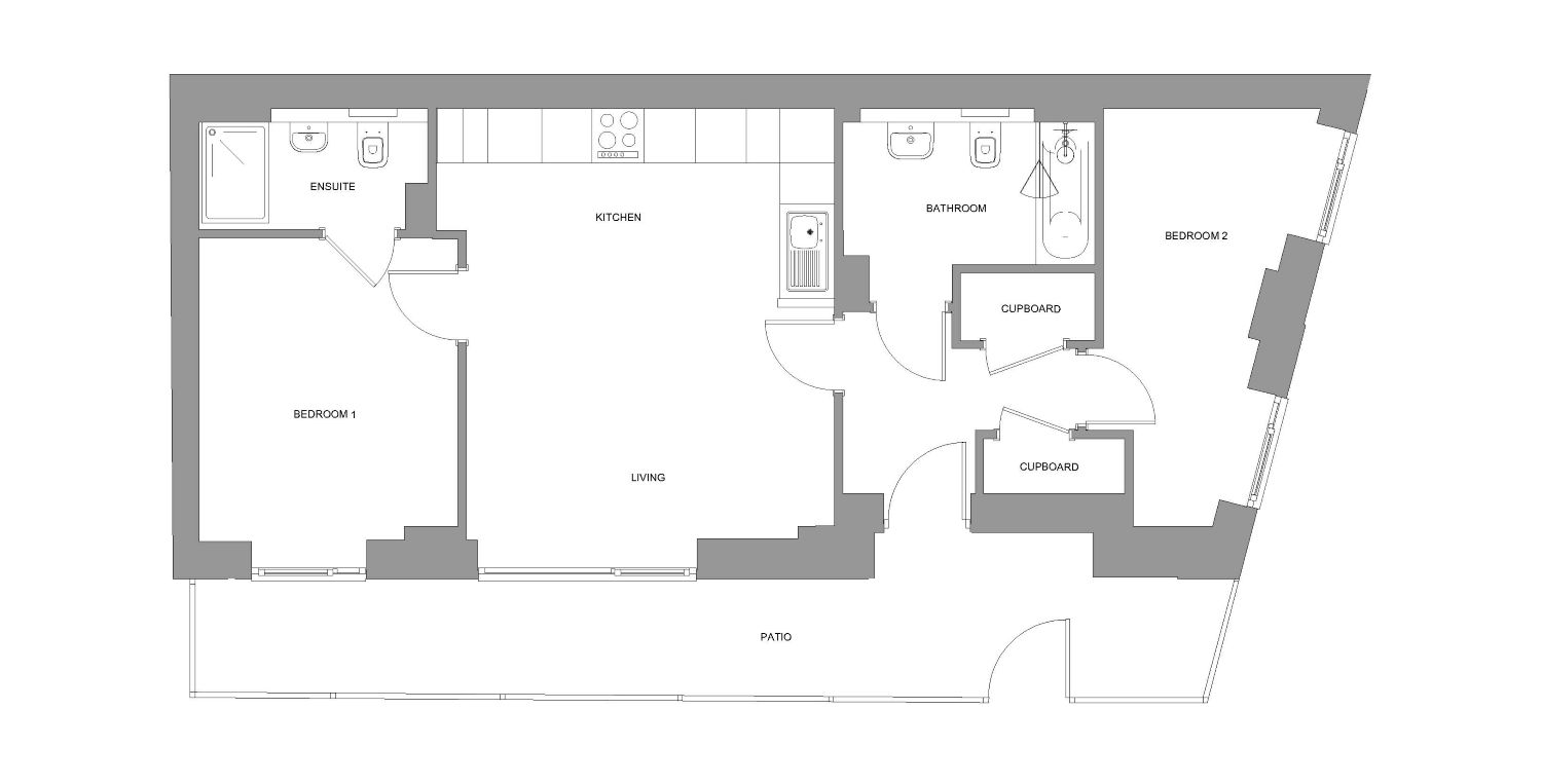
The Ramsden is a contemporary 2 bedroom apartment located on the ground floor of Gateway House. 

From the entrance hall, you have a spacious open-plan kitchen/living/dining area to the left of the apartment, which when continuing through leads you to the master bedroom complete with an ensuite bathroom. To the right, there is an additional bedroom that could be used as a spare room, home office or hobby room. The apartment also includes a family bathroom and convenient storage cupboard in the hallway. 

Share values advertised are indicative only. Depending on affordability, share percentages can range from 10% to 75%. 

A large purpose built apartment building with balconies

Apartments and Availability

Plot 68 | Ground Floor | From £116,000 (40% share)

  • Floorplan

    Kitchen/Dining

    2.28m x 4.74m | 7’6” x 15’7” 

    Living Room

    2.81m x 4.39m | 9’3” x 14’5” 

    Bedroom 1 

    3.09m x 3.62m | 10’1” x 11’10”

    Ensuite

    1.50m x 2.73m | 3’9” x 8’9”  

    Bedroom 2

    2.38m x 3.08m | 4’11” x 8’11”

    Bathroom

    1.90m x 2.91m | 6’3” x 9’6”  

    Total Area

    62.9sqm / 677sqft

    *All dimensions are approximate. Some house types are subject to variation in build/layout. Please speak to a Sales Advisor for more details.

Specification

  • Kitchens
    • Contemporary kitchen wall and base units from Magnet
    • Laminate worktops
    • Glass splashback to the hob position
    • Integrated oven and hob
    • Integrated fridge freezer 
  • Bathrooms
    • Contemporary white bathroom suites with Vitra sanitaryware
    • Ceramic wall tiling
    • Full height tiling in bathrooms and ensuites to shower and bath
    • Half height tiling to walls with sanitaryware in all bathrooms
    • Glass shower screen to all baths 
  • Internal Finish
    • Smooth ceilings and walls throughout finished in brilliant white emulsion
    • All woodwork in white gloss
    • Anthracite PVCu windows
    • Luxury Vinyl Tile (LVT) flooring throughout the property
    • Plywood fixings provided behind plasterboard for curtain battens in all rooms 
  • Lighting and electrical
    • TV points in lounge, dining room, family room and all bedrooms
    • LED ceiling mounted downlights to all kitchens, bathrooms, ensuites and WC’s
    • Pendant and spotlight lighting to living areas and bedrooms
    • Shaver socket to all bathrooms and ensuites 
  • Heating
    • Air Source Heat Pump (ASHP) with integral cylinder for water heating
    • Mechanical Ventilation with Heat Recovery (MVHR) units
    • White panel heaters
    • Heated towel rails to all bathrooms and ensuites 
  • External Features
    • External light to property front doors (ground floor) and balconies
    • Balcony/Patio area from living room (plot dependent)
    • EV charging provision in some car parking spaces (plot dependent)
  • Peace of Mind
    • Multi-point locking system to front doors
    • Lockable double glazed windows (except for escape windows) 

Location

Wickford is a charming town located within the Borough of Basildon, Essex, in the East of England.

It is situated between the towns of Basildon and Southend-on-Sea and is surrounded by beautiful countryside, making it an ideal location for those who seek a quieter and more scenic living environment.

The town has a rich history, with evidence of human settlement dating back to the Roman times. Today, Wickford is a well-developed town with a range of amenities, including schools, shops, restaurants, cafes, and pubs.

It also has excellent transport links, with easy access to the A127 and A130 roads, as well as the Wickford railway station, which connects the town to London and other major towns in Essex.

Enquiry form

Personal details
Title
Preferred contact method
I'm interested in

I'm interested in

I'm interested in

(please select all that apply)

Privacy

How Will We Use This Information About You?

Here at Beech Grove Homes, we take your privacy seriously. Our Sales team will be in touch to answer your query using the contact details provided above.

We may share your information with other members of Sanctuary Group and third parties working on our behalf but we will never pass on your information to anyone else. You can change your mind at any time by contacting us.

Read our full Privacy statement for further information.

How Will We Use This Information About You?

Here at Sanctuary, we take your privacy seriously. Our Sales team will be in touch to answer your query using the contact details provided above.

We may share your information with other members of Sanctuary Group and third parties working on our behalf but we will never pass on your information to anyone else. You can change your mind at any time by contacting us

Read our full Privacy statement for further information.

Marketing Consent

We'd also like to send you exclusive offers and updates on the property you are interested in, as well as other suitable developments matching your needs. If you are happy for us to contact you in this way, please tick the relevant boxes below.

Marketing opt-in