Search the website

On this page

From £104,000
3 Bedrooms
1 Bathrooms

Overview

The Elmslie is a modern 3-bedroom home, perfect for those looking to purchase their first home.

Upon entering the property there is an open-plan kitchen/dining room off the hallway, and following the hallway to the rear of the property brings you to a spacious living room with garden access. There is also a built-in storage cupboard in the living room as well as a downstairs WC. Upstairs, there’s a large master bedroom plus two additional bedrooms and a family bathroom.

The Elmslie is available for purchase via Shared Ownership. If you’d like to speak to an experienced member of our local sales team, please call 07350 448160 or email the.boatyard@sanctuary.co.uk.

Share values advertised are indicative only. Depending on affordability, share percentages can range from 10% to 75%.

Floor Plans

  • Ground Floor

    Kitchen/Dining Room

    2.95m x 4.81m | 9’8” x 15’9”

    Living room

    3.69m x 5.15m | 12’1” x 16’11”

    WC

    0.94m x 1.77m | 3’1” x 5’10”

    *All dimensions are approximate. Some house types are subject to variation in build/layout. Please speak to a Sales Advisor for more details.

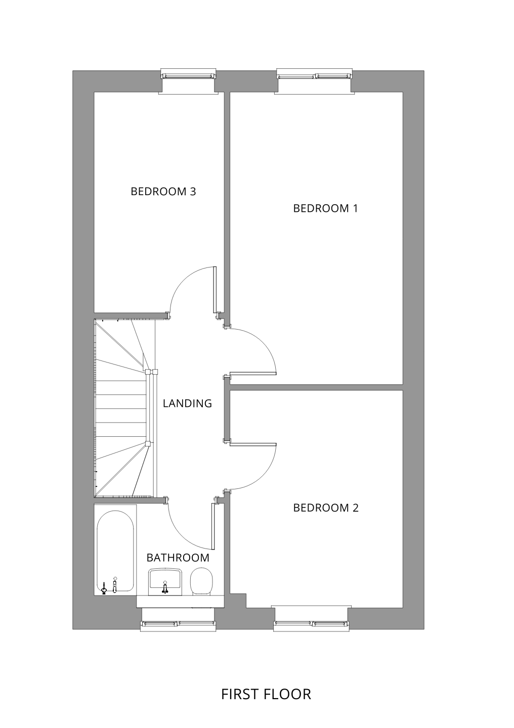
  • First Floor

    Bedroom 1

    2.90M x 4.87m | 9’6” x 16’0”

    Bedroom 2

    2.90m x 3.64m | 9’6” x 11’11”

    Bedroom 3 

    2.19m x 3.69m | 7’2” x 12’1”

    Bathroom 

    2.19m x 1.77m | 7’2” x 5’10”

    *All dimensions are approximate. Some house types are subject to variation in build/layout. Please speak to a Sales Advisor for more details.

Location

Just a 10 minute drive from the centre of Chesterfield, Ash Glen is located on the outskirts of the small country village of Unstone. The area is surrounded by rural countryside, yet all amenities are just a short distance away.

If you’re looking for somewhere to go on a day out, the bustling town of Chesterfield has something for everyone, from shopping centres and popular high-street stores to restaurants and independent cafes. The peaceful Derbyshire countryside is one of the main attractions for many people, which can be enjoyed at its best at Dronfield Nature Park. Surrounded by woodland, it’s the perfect spot for a summer evening picnic.

A number of highly-rated schools are also nearby in Chesterfield and Dronfield, plus the nearest GP at Dronfield Medical Practice is just 5 minutes away.

Enquiry form

Personal details
Title
Preferred contact method
I'm interested in

I'm interested in

I'm interested in

(please select all that apply)

Privacy

How Will We Use This Information About You?

Here at Beech Grove Homes, we take your privacy seriously. Our Sales team will be in touch to answer your query using the contact details provided above.

We may share your information with other members of Sanctuary Group and third parties working on our behalf but we will never pass on your information to anyone else. You can change your mind at any time by contacting us.

Read our full Privacy statement for further information.

How Will We Use This Information About You?

Here at Sanctuary, we take your privacy seriously. Our Sales team will be in touch to answer your query using the contact details provided above.

We may share your information with other members of Sanctuary Group and third parties working on our behalf but we will never pass on your information to anyone else. You can change your mind at any time by contacting us

Read our full Privacy statement for further information.

Marketing Consent

We'd also like to send you exclusive offers and updates on the property you are interested in, as well as other suitable developments matching your needs. If you are happy for us to contact you in this way, please tick the relevant boxes below.

Marketing opt-in